Екатеринбург ЕКАД. Катаемся по ЕКАД и Чусовском...
Современный коттедж из старомодной избы: 5-6 пл...
Раздел 6
6 этажное каркасное здание - Чертежи, 3D Модели...
Навчальна програма «Етика» для учнів 5-6 класів...
ЭВМ (6)
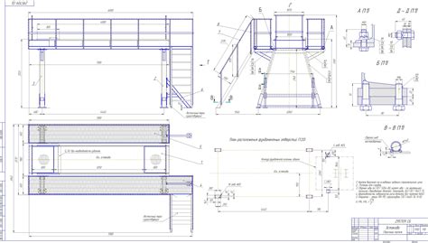
Чертеж Ж Д Эстакада - prikazzy
Еврокод 5. Деревянные конструкции
5-этажный 2-секционный жилой дом - Чертежи, 3D ...
Моделировка в exocad 6 единиц с десной - YouTube
ЕСКД. Стадии разработки конструкторской докумен...
ПЛАНКА ПОЧТИ КАК НА ИС-6 - КОНЧ90ММ - НАСТОЯЩИЙ...
6 | МОДЕЛИСТ-КОНСТРУКТОР
Проект 5 Этажного Дома Autocad - fontdns
Жилой дом на 6 этажей. Фасад. - Чертежи, 3D Мод...
Эстакада с навесом 15х6,5м - Чертежи, 3D Модели...
Проект КМД кабельной эстакады 6кВ на ООО "Дельт...
(o_O ): Эстакада для подвесного крана, грузопод...
Строительство ЕКАД завершается. 2020 - YouTube
5 этажный жилой дом - проект в AutoCAD (Автокад...
ЕКАД расширяют до шести полос. Видео реконструк...
Экскаватор ЭКГ-5 и ЭКГ-5А | Технические характе...
География 5 - 6 класс Алексеев. §53. Это мне ин...
Масштабы. Единая система конструкторской докуме...
Эстакада для обслуживания участка линии - Черте...
наглядная геометрия 5 6 класс | PDF
ЕКАД почти готов. Можно ездить!!! - YouTube
AutoCAD 6-дарс. Прямая, Круг ва Многоугольник и...
Жилой 6-этажный трехсекционный дом 4600 кв.м по...
1.5 Генеральный план района строительства
урок 5 6 клас | PPT
Аренда офиса на шестом этаже строения 3 в БЦ на...