Форматка чертежная А4 купить в Могилеве, Гомеле...
Чертежные рамки горизонтальные
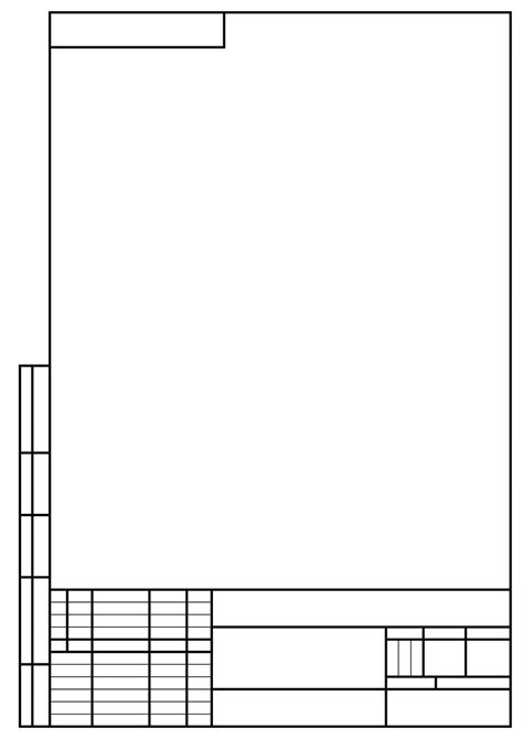
Распечатать рамку для черчения а4
Гост форматка а4: ГОСТ 2.104-68 ЕСКД. Основные ...
Гост форматка а4 – Размер бумаги альбомного лис...
3. Назвать размеры формата а4, как выполняется ...
Форматка чертежная «Типография «Победа», А4 (21...
Чертежные рамки А4 (3 форматки AutoCAD) — Черте...
Форматка чертежная для лабораторных и дипломных...
«Форматка чертежная - А4 - Большая рамка - Ватм...
Рамка и таблица для чертежа а4 с размерами
Рамка А4 Word (основная надпись) — Чертеж.бай
Форматка А4 55мм рамка (Ватман А4 с вертикальны...
Форматки, спецификации - Канцтовары оптом от M4...
Размеры рамки для черчения А4-А0, форматы листо...
Подборка шаблонов рамок А4 для чертежей, рефера...
Бланк чертежа а4 в ворде горизонтально
Формат а4 со штампом для word - Word и Excel - ...
Купить Форматка А4 (с рамкой и штампом) в Минск...
Размеры стандартной таблицы для чертежей
Чертежная Рамка А4 Пдф - instructiontransfer
Форматки, спецификации - Канцтовары оптом и в р...