Промышленное газовое оборудование - ГАЗТЕСТ
В Германии рассказали о важном преимуществе обы...
Питатели вибрационные горные тип ПВГ | Вибротех...
ЗАПЧАСТИ для газовых колонок
КОЛОНКА ВПГ-23 - Внутридомовое газовое оборудов...
Магазин газового оборудования в Перми - купить ...
Газовое оборудование на Весту - YouTube
Газовое оборудование
Transgaz to connect nine Romanian villages to E...
Газовые монтажные пистолеты - ВАПП ГРУПП
ВПГ-10, ВПГ-20, ВПГ-30, ВПГ-40 ЗАО "ТомЗЭЛ" / P...
высококачественное немецкое и итальянское газов...
Газовое промышленное оборудование ПКФ "АГРИУС"
Тепловое и Газовое оборудование в Санкт-Петербурге
ППГ - Запад-ЕМ
ООО «Инженерные Технологии» - ВКГО, ВДГО, ремон...
V-Gas - ВИ - ГАЗ разпространява зелена енергия.
ИНТЕХ - газорегуляторные пункты | купить газово...
Промышленное, бытовое газовое оборудование - Пе...
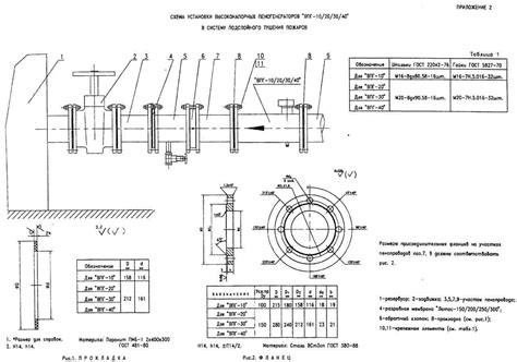
Вариабельные пеногенераторы ВПГ низкой и средне...
Manufacture
Газовое оборудование из Китай
Впг-10Е Руководство По Использованию - kulturam...
ООО Модуль-газ - производство промышленного газ...
Системы подготовки газа
Инсталации - V-Gas
Блок подготовки топливного газа БПТГ
Ремонт Газовое оборудование впг,пг,кс | Ремонт ...
ООО «Вега-ГАЗ» - Наука-Связь
Главная - ТОО Завод Газовых Систем
Производство газового оборудования с доставкой ...
Высоконапорный пеногенератор ВПГ
Venture Global LNG строит СПГ-завод нового поко...