космос | Семь Долгих Лет
--Александровское 74 км от Великого Новгорода, ...
Информация недоступна (ошибка RK n.22)
Pin on guns
Челябинская область, № В 716 КМ 74 — МоАЗ-546П;...
Промотивни материјали за КМ #74: Дрвјата се наш...
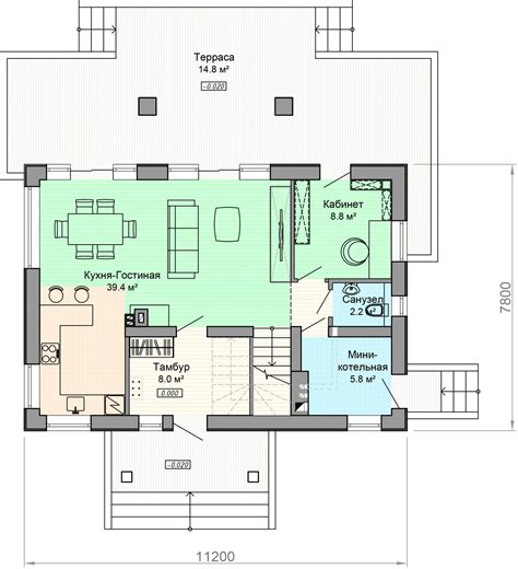
Проект мансардного дома с террасой «КМ-74» – An...
Челябинская область, Hyundai AeroCity 540 № Н 9...
74 мили в километров конвертер единиц | 74 mi в...
«Партия модернизированных АК-74М "Обвес" поступ...
Партия модернизированных АК-74М «Обвес» поступи...
АКМ-74/2 | Оружие
Ближайшие города:
O-time.ru :: entry
Челябинская область, МАРЗ-4219 № С 977 КМ 74 — ...
артикул КМ-74 Мансардный дом с 4 спальнями (пло...
XCM Бобровый перекат. 74 км. Полная версия с те...
12 74 Kilometer Images, Stock Photos & Vectors ...
Ак 74 ттк: АК-74 автомат Калашникова - ттх, тех...
Штукатурка гипсовая КМ-74 машинная серая 30 кг ...
"Бои за разъезд 74 км" https://vk.com/album4680...
Штукатурка гипсовая КМ-74 машинная 30 кг — купи...
ВИДЕО ОБЗОР ДОМА В ХАДЫЖЕНСКЕ . 74 км от черног...
Челябинская область, КАвЗ-3976 (397600) № С 987...
На десяти федеральных трассах ограничат движени...
Купить двухкомнатную квартиру 36м² Киевское шос...
Партия модернизированных АК-74М "Обвес" поступи...
Летим 74 км/ч на веле с горки в Харькове. Серед...
PPT - Московская область Площадь 47 000 км 74 м...